G97.1M Проект двухэтажного дома, с мансардой, планировка с террасой и с биллиардной, в современном стиле

Автор проекта: Aрхитекторы - партнеры
  • Общая площадь дома:220.7 м²
Стоимость проекта:
  • Архитектурно-строительные чертежи (АС)    69 800 ₽
  • Внутренние инженерные системы (ИС) отопление, водопровод, канализация, электрооборудование    25 000 ₽
  • Строительный паспорт проекта    5 000 ₽
  • Разбивочный план вашего участка    6 000 ₽
  • Дополнительная копия проекта    3 000 ₽
Стоимость, дополнительные опции только для проектов Тарасова В.А.:
  • Электронная копия в формате PDF     5 000 ₽
  • Корректировка Паспорта проекта
    (в зависимости от пожеланий)   
    По дог.
  • Корректировка конструкций дома
    (в зависимости от пожеланий)   
    По дог.
  • Разработать установку скрытых алюминиевых роллет (опция, отдельный альбом)    1 ₽
Заказать проектПоложить в мои желания
Спасибо за обращение к нам, в ближайшее время мы вам ответим

Строить легче с проектом от  "АЛЬФАПЛАН" потому, что у нас подробные строительные чертежи.

Готовые проекты: 1. не предназначены для строительства в СЕЙСМИЧЕСКИ АКТИВНЫХ РАЙОНАХ, а фундаменты - в условиях ВЕЧНОЙ МЕРЗЛОТЫ, 2. проекты домов требуют Привязки к конкретному участку строительства (внизу страницы).

.

Общая площадь дома 220.7 м²
Площадь мансарды 99.5 м²

Проект двухэтажного дома, с мансардой, планировка с террасой и с биллиардной, в современном стиле - технические характеристики

Тип фундамента монолитная ж/б плита
Тип наружных стен газо(пено)бетонные блоки
Тип внутренних несущих стен газо(пено)бетонные блоки
Тип перекрытий монолитная ж/б плита
Тип кровли металлическая черепица
Наружная отделка стен лицевой кирпич, декоративная штукатурка
Наружная отделка цоколя облицовочный камень
Гараж Без гаража
Высота дома от уровня пола 1-го этажа 11.5 м
Высота 1-го этажа от пола до потолка 2.93 м
Высота 2-го этажа от пола до потолка 2.92 м
Ширина 13 м
Длина 14 м
Утеплитель минеральная вата
Материал окон из ПВХ профилей/Защитные роллеты ALUTECH (реклама: ООО "Алютех-М")

Описание проекта

G97-1 — базовая версия комфортабельного 2-этажного коттеджа, с уплощенной вальмовой кровлей и полноправным по высоте 2 этажом (2,95 м). Простая геометрия здания, отсутствие излишеств в отделке — приметы современного стиля. При кажущейся сдержанности, дом производит впечатление респектабельного жилья.

К достоинствам проекта стоит отнести удачное внутреннее разграничение зон и логичность планировки. Внушительная жилплощадь — почти 150 м2 — даст возможность большому семейству обитать в нем круглый год. При этом каждому человеку будет комфортно, и даже поколения будут сосуществовать, не мешая друг другу.

Детали планировки

На чертеже 1 этажа мы видим три входа:

  • центральный, где тамбур-шлюз создает тепловую завесу, препятствуя проникновению холодного воздуха с улицы;
  • боковой, ведущий в хозпомещения;
  • вход на террасу из сада.

С тамбуром соседствуют свободная гардеробная и одна комната, которая может служить детской или гостевой. Из холла с междуэтажной лестницей можно попасть в котельную и санузел. Открытая зона огромной гостиной-столовой зрительно разделена на несколько частей:

  • обеденная зона, продолженная террасой;
  • уголок отдыха с домашним кинотеатром;
  • рабочая кухонная часть.

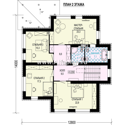
На 2 этаже по плану — три просторные спальни и кабинет хозяина. Все помещения прекрасно освещены естественным светом благодаря обилию высоких витражных окон. Широкая ванная комната с джакузи и санузел локализованы по центру строения, что делает пользование ими доступным для всех домочадцев.

Сервис для заказчиков

  • Сервис
    для заказчиков

    Внесение изменений в проекты

    Подробнее
  • Корректировка
    конструкций

    Изменение фундамента, перекрытий, теплые полы

    Подробнее
  • Планировка
    участка

    Разбивочный план, благоустройство, озеленение

    Подробнее
  • Индивидуальное
    проектирование

    Разработка проекта по заданию Закачика

    Подробнее
  • Индивидуальный
    фасад

    Корректировка фасада по желаниям заказчика

    Подробнее

Комментарии 0

Об этом проекте ещё никто не писал.
Задай вопрос или поделись своим мнением!
Нам не всё равно

Добавить комментарий
Добавление комментария